Welcome to the premium listing page for 3636 Sparrow Pond Cir, presented by Realty Done by Damien Baden (eXp Realty®). Damien listed and sold this condo in just three days.
View examples of Damien’s other premium listing pages and sales stats here.
To inquire about selling your home faster and for a higher price, call or text Realty Done by Damien Baden at (440) 628-1321.
3636 Sparrow Pond Cir, Bath OH 44333 – Sparrow Pond Condo For Sale
Enjoy carefree living and a community pool with this remodeled 2 bed, 2.5 bath two-story condo featuring serene waterfront views, a one-of-a-kind solarium, vaulted skylit ceilings, a loft, and a teen suite.
TOUR THE HOME WITH MATTERPORT 3D:
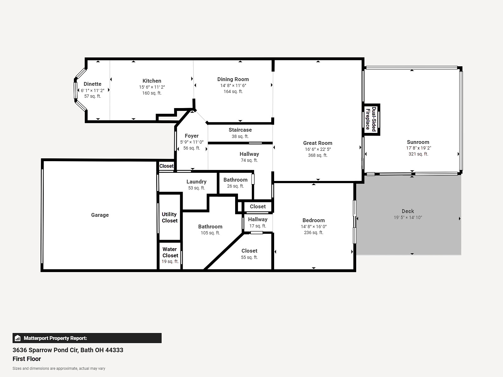
3636 Sparrow Pond Cir – First Floor (1,560 sqft)
Beautiful hand-scraped engineered hardwood flooring extends throughout the main living areas.
Your updated kitchen includes quartz countertops, ample cabinetry and a bayed dinette with a skylit vaulted ceiling.
Host elegant dinners and family celebrations in the formal dining room, crowned with a tray ceiling.
Soaring vaulted ceilings with skylights illuminate the massive great room, featuring niches for shelving, desks or console tables. Framing the dual-sided fireplace are two sets of French doors leading to — the pièce de résistance — a fully glassed (three walls + ceiling of windows) 3-season sunroom bestowing abundant sunshine, peaceful pond vistas, and views of the night sky for spectacular stargazing.
Head out to your private 285 sqft deck (also accessible from the owner’s suite) overlooking the shimmering water for alfresco dining and sunbathing.
Your oversized owner’s suite features a walk-in closet, a bonus closet, and en-suite bathroom with dual sinks, a walk-in shower, and water closet.
The laundry room/garage entry has a convenient coat closet, built-in utility tub, cabinets and a folding station.
Additional coat closet and storage cubby beneath the stairs.
Hall half bath near the great room.

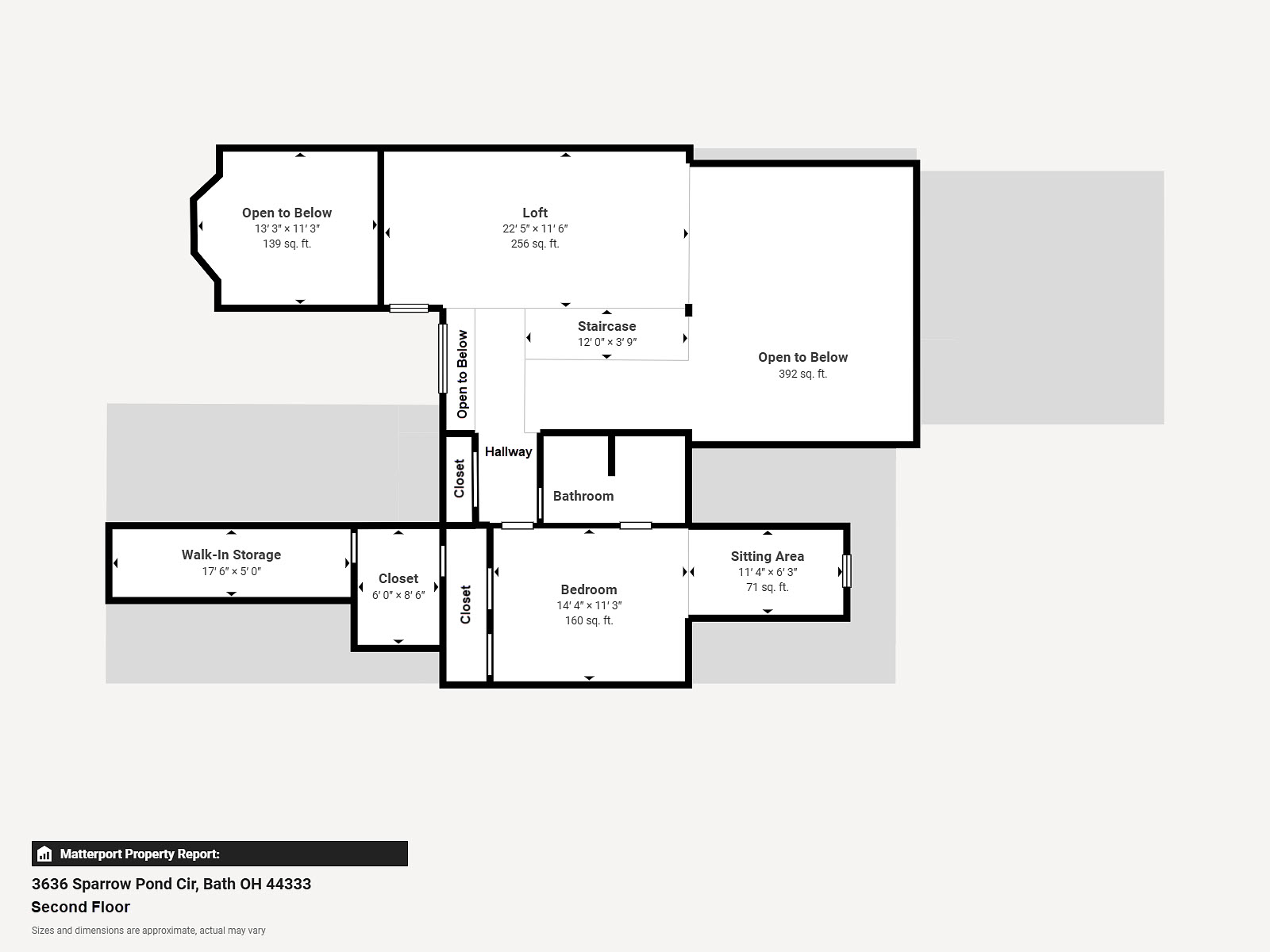
3636 Sparrow Pond Cir – Second Floor (780 sqft)
The spacious and versatile second-floor loft includes a wraparound desk where you can work, research or create, with additional space for a game table and sofa or a treadmill/yoga area.
Hall closet.
Fantastic teen/guest suite with a sitting area, adjoining bathroom (also accessible from the hall), dual closets, and two walk-in storage rooms (unfinished space is also accessed via pulldown from garage).

3636 Sparrow Pond Cir – Garage
2-car front-entry garage with utility closet.
For more info or to tour this home, call/text the listing agent, Realty Done by Damien Baden at (440) 628-1321.
Neighborhood & HOA Info
Sparrow Pond is a community of 44 attached condos constructed between 1987-1993.
Exclusive amenities include a community swimming pool and catch-and-release ponds.
3636 Sparrow Pond Cir sits near the end of a cul-de-sac street with minimal traffic.
This condo is conveniently located across from the mailbox kiosk.
Homeowner’s Association (HOA) fees for Sparrow Pond Condo Association are $790 monthly, which includes lawn care (mowing & fertilization), front landscaping, snow removal, exterior insect spraying twice a year, trash removal, basic cable, and high-speed internet service. The HOA is responsible for the condo’s exterior (excluding door and windows), foundation, roof, siding, gutters and downspouts, driveways, and front walkways.
Pets are allowed (with limitations).
This community is served by Revere Local School District.
Location & Nearby Amenities
3636 Sparrow Pond Cir is located in southern Bath (Akron), Ohio, off the west side of N Cleveland Massillon Rd, one mile north of Medina Rd (OH-18).
Highways are accessible in 3 min to I-77, 6 min to OH-21, 10 min to I-271, and 15 min to I-80/Turnpike.
Summit Mall is only 5 min away. Anchored by Dillard’s and Macy’s, it boasts nearly 100 retailers and eateries/restaurants.
Nearby shopping centers include Dick’s, Hobby Lobby, Home Depot, JCPenney, Kohl’s, Lowe’s, Target, Staples, World Market and more!
Local outdoor recreation amenities are plentiful! Only 8 min away is the 33,000-acre Cuyahoga Valley National Park, which includes the Cuyahoga River and numerous waterfalls, the 87-mile Ohio & Erie Canal Towpath Trail, and the Cuyahoga Valley Scenic Railroad. Several Summit Country Metro Parks are within ten min, offering miles of nature trails and mountain bike trails. Bath Nature Preserve is 12 min north with hiking and equestrian trails, two ponds for catch-and-release fishing, sled riding, and cross-country skiing. Also 12 min away is Allardale Park with hiking and equestrian trails, a picnic shelter and indoor lodge. Eastwood Preserve is a 12-min drive with 28 acres, an educational facility, hiking trails, a fishing lake, and a community garden.
Golfers are within 15 min of Loyal Oak, J. E Good Park, Mud Run, and Pine Valley Golf Courses.
Nearby Country Clubs include Fairlawn Country Club, St. Bernard Golf Club and The Sharon Golf Club, all within 15 min.
Boston Mills and Brandywine Ski Resorts are a 19-25 min drive for skiing and tubing during the winter months.
Concerts at Blossom Music Center are 16 min away.
Driving Distances
- I-77 – 3 min
- OH-21– 6 min
- I-271 – 10 min
- I-80/Turnpike – 15 min
- Summit Mall – 5 min
- Grocers & Walmart– 5-6 min
- USPS – 6 min
- Target – 9 min
- Downtown Akron – 14 min
- Akron-Canton Airport – 28 min
- Downtown Cleveland – 30 min
- Hopkins International Airport – 30 min
